Brak produktów
Potrzebujesz pomocy? Napisz do nas [email protected]
Zobacz większe KOD: 250sdcocoonjpbasin
ID: 171167
Ostatnie egzemplarze!
Data dostępności:
| Adres-ulica | Keizersgracht 241 |
| Adres-miasto | 1016 EA Amsterdam |
| Rok produkcji | 2020 |
| Projektant | John Pawson |
| Producent | Cocoon |
| Adres-kraj | Holandia |
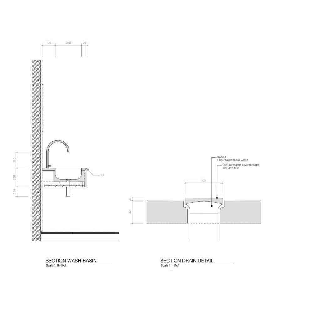
Umywalka marmurowa do montażu na ścianie
Wykonana na zamówienie umywalka z kamienia naturalnego zaprojektowana przez Johna Pawsona. Ta próżność może być wykonana na wymiar, aby pasowała do dowolnej szerokości. Wewnętrzna umywalka wykonana jest z litego bloku marmuru. W tym odpływ z tego samego materiału. Dostępny w szerokiej gamie marmurów naturalnych.
Minimalny rozmiar: 1000 x 600 mm
Wysokość: 250 mm
COCOON, John Pawson, Umywalki, Umywalki i armatura łazienkowa, umywalka, Umywalki w stylu współczesnym, Umywalki z marmuru, Umywalki z kamienia naturalnego, Umywalki naścienne
Producent | Importer |
| Cocoon | 7 Regnum Group Damian Wawrzyniak |
| Keizersgracht 241 | Pasternik 4F |
| 1016 EA Amsterdam | 48-250 Głogówek |
| Holandia | Polska |

Umywalka marmurowa do montażu na ścianie Cocoon JP BASIN
Zapisz się do naszego newslettera i otrzymuj oferty specjalne i rabaty dla stałych i nowych klientów! Wystarczy, że podasz nam swój adres e-mail i nie przegapisz już żadnej oferty!

* Pola wymagane
lub Anuluj